0 Rt 113 And Deer Forest Rd, Georgetown, De 19947
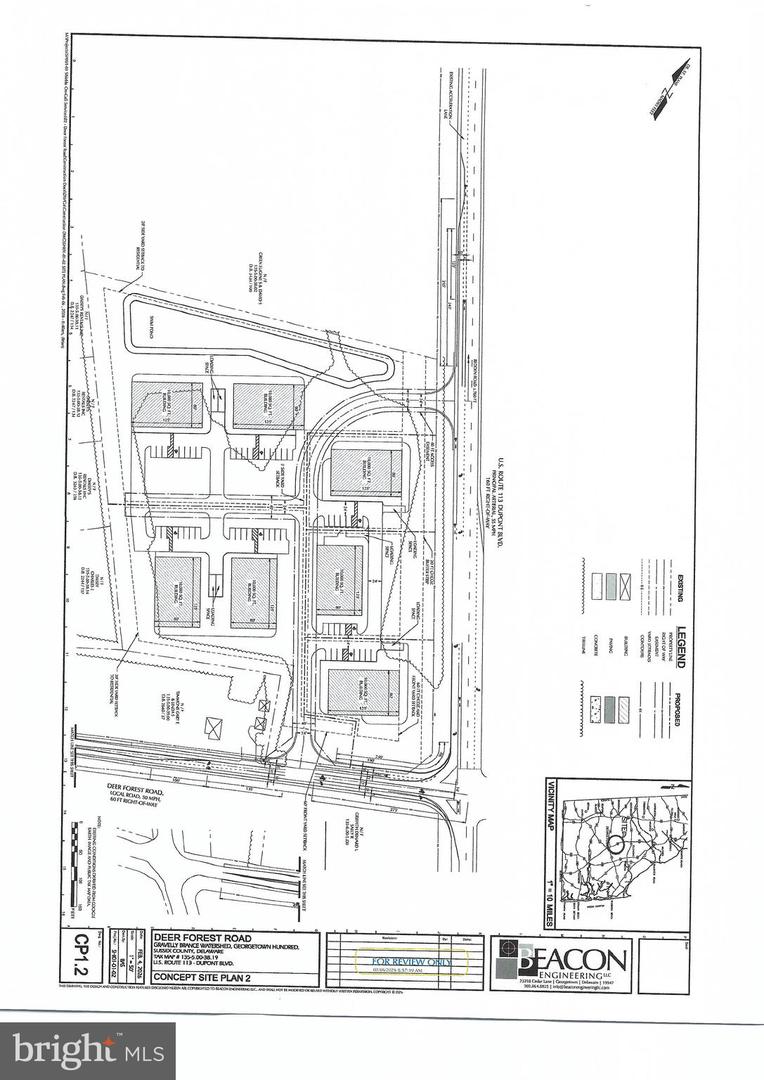
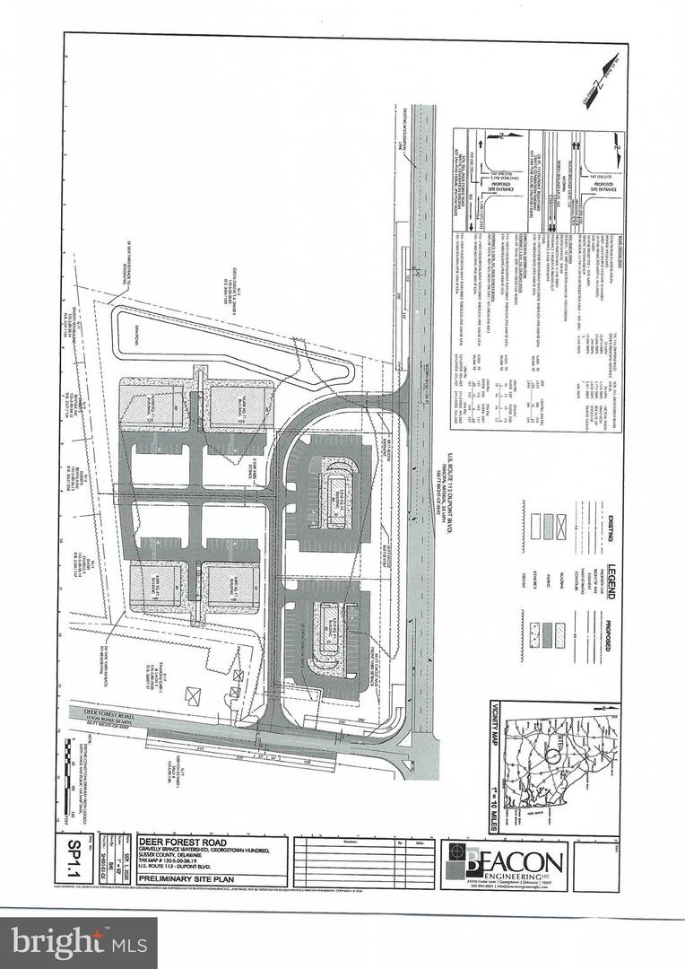
$2,200,000 Exceptional opportunity to acquire a 9.39± acre parcel ideally positioned for commercial development just outside the Georgetown town limits. This highly visible property offers substantial frontage on both Route 113 and Deer Forest Road, with approved access points from each roadway, providing excellent traffic exposure and convenient ingress and egress.
Strategically located at one of the few signalized intersections along this busy corridor, the site presents outstanding potential for a wide variety of commercial uses. The high-traffic location combined with dual-road access makes this parcel especially attractive for retail, service, hospitality, or mixed-use development.
Multiple preliminary development plans are available for review, offering valuable insight into potential site layouts and development concepts. Buyers may choose to utilize these plans or design a custom project tailored to their specific vision.
Buyer is responsible for conducting all due diligence regarding zoning, permitted uses, and availability of public utilities.
Don’t miss this opportunity to secure a high-visibility development site in one of Sussex County’s growing commercial corridors.
Contact Jack Lingo
Essentials
MLS Number
Desu2106288
List Price
$2,200,000
Standard Status
Active
New Construction
Y
Property Type
Commercial Sale
Waterfront
N
Location
Address
0 Rt 113 And Deer Forest Rd, Georgetown, De
Acres
9.39
Lot Features
Cleared, corner, irregular, partly Wooded
Interior
Heating
None
Heating Fuel
None
Cooling
None
Hot Water
None
Interior Features
Appliances
Additional Information
Listing courtesy of Bryan Realty Group.





