29442 Glenwood Dr, Millsboro, De 19966
$495,0003 Bed
3 Bath
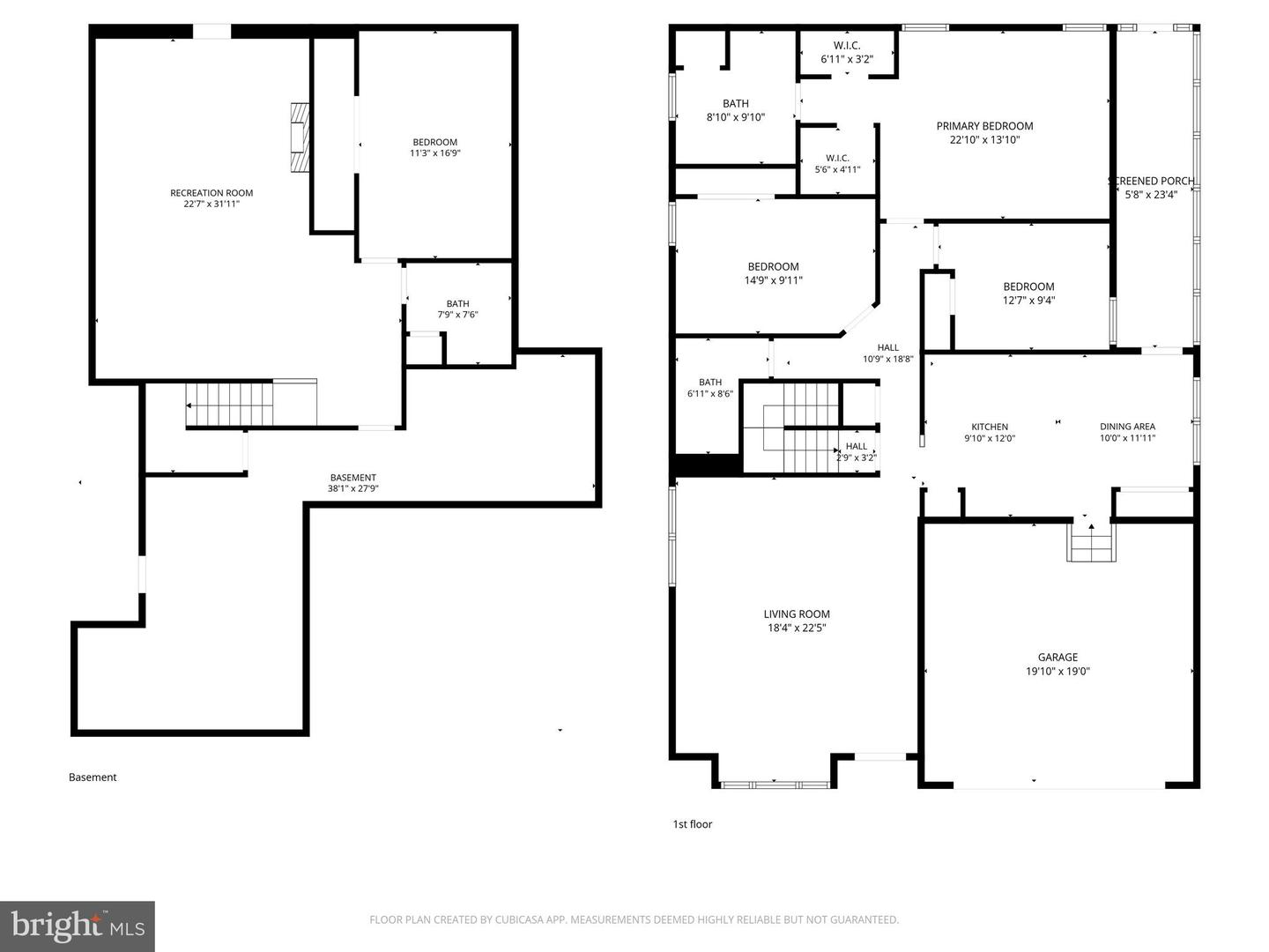
Love golf? Love the beach life? Welcome to Plantation Lakes! Come enjoy easy, laid-back living in this popular golf course community just a short drive to the Delaware beaches. This home offers plenty of space to spread out, featuring 3 bedrooms and 2 full baths on the main level, including a comfortable owner’s suite with a walk-in closet and private owner’s bathroom. The spacious living room is perfect for relaxing or gathering with friends, and the kitchen features granite countertops plus a cozy breakfast area for everyday meals. The partially finished basement offers additional living space with a bedroom and full bath, and its own living room with cabinetry plus an outside entrance. Step outside and you’ll really fall in love — a paved patio with a beautiful awning and fireplace creates the perfect space for entertaining or unwinding after a day at the beach. Living in Plantation Lakes isn’t just about the home — it’s about the lifestyle. Enjoy access to a championship golf course, pools, fitness center, walking trails, tennis and pickleball courts, and a vibrant clubhouse. Whether you're staying active, socializing with neighbors, or simply soaking in the relaxed coastal atmosphere, this community makes every day feel like a getaway.
Contact Jack Lingo
Essentials
MLS Number
Desu2107284
List Price
$495,000
Bedrooms
3
Full Baths
3
Standard Status
Active
Year Built
2011
New Construction
N
Property Type
Residential
Waterfront
N
Location
Address
29442 Glenwood Dr, Millsboro, De
Subdivision Name
Plantation Lakes
Acres
0.18
Interior
Heating
Central
Heating Fuel
Natural Gas
Cooling
Central A/c
Hot Water
Natural Gas
Fireplace
N
Flooring
Laminate Plank, tile/brick, carpet
Square Footage
2434
Interior Features
- Bathroom - Tub Shower
- Ceiling Fan(s)
- Entry Level Bedroom
- Walk-in Closet(s)
- Breakfast Area
- Bathroom - Stall Shower
Appliances
- Dishwasher
- Refrigerator
- Microwave
- Oven/Range - Electric
Additional Information
Listing courtesy of Iron Valley Real Estate At The Beach.































































