4405 Green Briar Way, Seaford, De 19973
$695,0003 Bed
3 Bath
2 Hf. Bath
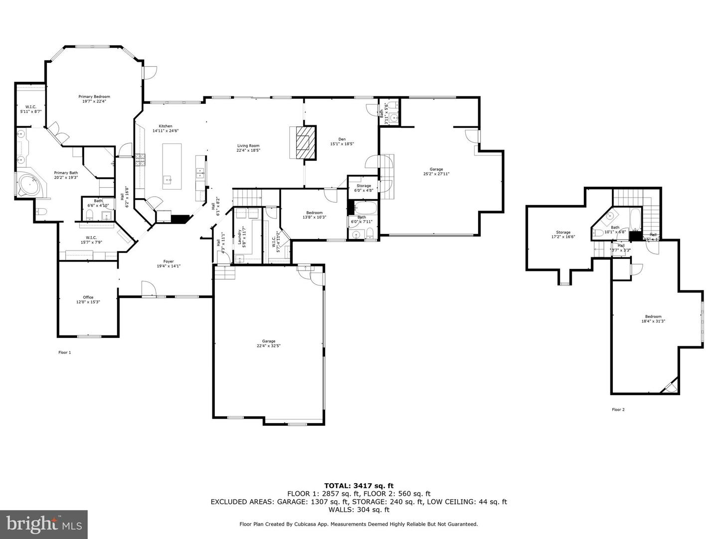
Rare opportunity to assume a 2.375% interest rate - inquire with Listing Agent today! Custom-built 3BR, 3 Full BA, 2 Half BA stone-front home in a quiet, upscale neighborhood. The grand foyer opens to a light-filled, open floor plan with spacious formal dining, a cozy family room, and a front-facing office with nearly floor-to-ceiling windows. The gourmet kitchen features custom Bertch soft-close cabinetry, granite countertops, oversized island with prep sink and wine cooler, GE stainless appliances, 6-burner propane stove with griddle, pot filler, built-in oven, convection oven/microwave, warming drawer, heated food box, and pantry with built-in organizer.
The sunlit living room offers surround sound, floor-to-ceiling stone fireplace (propane/wood), and multiple windows for abundant natural light. The first-floor owner’s suite includes tray lighting, two custom walk-in closets with built-ins, oversized tile shower with rain head, whirlpool tub, dual vanities, and a private bedroom retreat. A second main-level bedroom includes its own full bath, plus there are two half baths on the main floor. Upstairs, find a spacious bonus room with full bath.
Enjoy year-round comfort in the 8x20 enclosed rear porch. The home boasts two heated/cooled attached garages with space for three vehicles, a concrete pad with 50-amp RV hookup, underground irrigation, programmable sprinkler system, outdoor custom lighting, and wrought iron fenced backyard with double gate access.
Exterior features include a built-in grill island with fridge, patio, fire pit hookup, fountain garden hookup, and professional hardscaping. Utility highlights: encapsulated crawl space with dehumidifier, tankless hot water heater, reverse osmosis, water softener, central vacuum (with kitchen kick-toe), and full security system with cameras, DVR, and ADT monitoring.
Truly one-of-a-kind—schedule your private tour today!
Contact Jack Lingo
Essentials
MLS Number
Desu2102464
List Price
$695,000
Bedrooms
3
Full Baths
3
Half Baths
2
Standard Status
Active
Year Built
2008
New Construction
N
Property Type
Residential
Waterfront
N
Location
Address
4405 Green Briar Way, Seaford, De
Subdivision Name
Green Briar
Acres
0.86
Interior
Heating
Heat Pump(s)
Heating Fuel
Electric
Cooling
Central A/c
Hot Water
Tankless
Fireplace
Y
Flooring
Hardwood, tile/brick, carpet
Square Footage
3636
Interior Features
- Attic
- Entry Level Bedroom
- Dining Area
- Built-Ins
- Carpet
- Ceiling Fan(s)
- Central Vacuum
- Formal/Separate Dining Room
- Kitchen - Gourmet
- Pantry
- Walk-in Closet(s)
- Window Treatments
- Wood Floors
- Sprinkler System
- Recessed Lighting
- Kitchen - Table Space
- Kitchen - Island
- Upgraded Countertops
Appliances
- Built-In Microwave
- Built-In Range
- Central Vacuum
- Dishwasher
- Dryer - Front Loading
- Icemaker
- Microwave
- Oven/Range - Gas
- Range Hood
- Refrigerator
- Stainless Steel Appliances
- Washer - Front Loading
- Water Heater - Tankless
- Water Conditioner - Owned
Additional Information
Listing courtesy of Keller Williams Realty.
































































