34731 Maritime Way, Lewes, De 19958
$500,0003 Bed
2 Bath
1 Hf. Bath
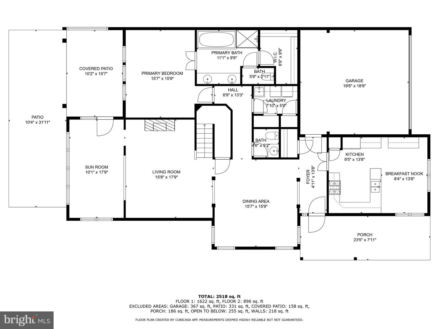
Welcome to this well-maintained end-of-row townhome nestled in Bay Crossing, one of the area’s most desirable 55+ communities. This 3BR/2.5BA home, built by Pulte Homes in 2006, is perfectly positioned along a scenic par-3 golf course. This home offers a blend of comfort, convenience, and resort-style living.
Inside, the spacious floor plan features 3 bedrooms and 2.5 baths, including a first-floor primary suite with a private en-suite bath containing a stand-up shower and a soaking tub. The bright and inviting kitchen includes a cozy breakfast nook, while the separate formal dining room provides the perfect setting for entertaining. The living room boasts a gas fireplace, adding warmth and charm to the heart of the home. A delightful sunroom off the living room offers a nice additional seating area. 5367-BL
Exterior highlights include a covered patio for outdoor gatherings and thoughtfully designed landscaping. Lawn care is provided by the community, allowing you to enjoy a low-maintenance lifestyle. A two-car garage offers additional storage and convenience. A $1,500 Capital Contribution Fee to be paid by Buyer at time of settlement. Schedule your showing today because this one will not last long!!!
Contact Jack Lingo
Agent Information
Essentials
MLS Number
Desu2093356
List Price
$500,000
Bedrooms
3
Full Baths
2
Half Baths
1
Standard Status
Closed
Year Built
2006
New Construction
N
Property Type
Residential
Waterfront
N
Location
Address
34731 Maritime Way, Lewes, De
Subdivision Name
Bay Crossing
Acres
0.00
Interior
Heating
Forced Air
Heating Fuel
Natural Gas
Cooling
Central A/c
Hot Water
Tankless
Fireplace
Y
Flooring
Carpet, ceramic Tile, hardwood
Square Footage
2700
Interior Features
- Bathroom - Soaking Tub
- Carpet
- Ceiling Fan(s)
- Dining Area
- Entry Level Bedroom
- Kitchen - Eat-In
- Kitchen - Table Space
- Pantry
- Primary Bath(s)
- Walk-in Closet(s)
- Window Treatments
- Wood Floors
Appliances
- Built-In Microwave
- Built-In Range
- Dishwasher
- Dryer
- Oven/Range - Gas
- Refrigerator
- Washer
- Water Heater
Additional Information
Listing courtesy of Jack Lingo - Lewes.








































































































